5234:新築戸建 練馬区富士見台3丁目新築分譲住宅
| 価格 | 9,099万円 |
|---|---|
| 所在地 | 東京都練馬区富士見台3丁目 |
| 交通 | 西武池袋線 富士見台駅 徒歩11分 |
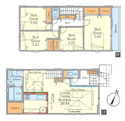
| 間取 | 4LDK |
| 土地面積 | 114.55m²(34.65坪) |
| 建物面積 | 104.74m²(31.68坪) |
| 私道面積 | - |
| 築年月 | 2026/01 |
| 学区 | 小学校区:富士見台小学校 700m 中学校区:石神井東中学校 900m |
| 建物構造 | 木造 |
|---|---|
| 階建 | 地上2階建 |
| 建ぺい率 | 50% |
| 容積率 | 100% |
| 地目 | 宅地 |
| 用途地域 | 第一種低層住居専用地域 |
| 土地権利 | 所有権 |
| 取引態様 | 仲介 |
| 引渡時期 | 即時 |
| セットバック | |
|---|---|
| 接道 | 東 4m(幅員) 公道 北 2.73m(幅員) 区有道路 |
| 諸費用 | |
| 他法条例 | 準防火地域 |
| 建築確認番号 |
特色
東京電力、都市ガス、公営水道、公共本下水、駐車場、駐車場2台分、フラット35S、地盤保証10年、閑静な住宅街、陽当り良好、角地、アクセントクロス、床暖房、システムキッチン、浄水器、食器洗浄機、3口以上コンロ、バス1坪以上、追焚機能、浴室乾燥機、シャワー付洗面化粧台、トイレ2ヶ所、温水洗浄便座、24時間換気システム、モニター付インターフォン、シャッター雨戸、火災報知器、クローゼット、全室収納、シューズBOX、バルコニー、パントリー



