令和08年2月19日 16時35分 更新
次回更新予定日:令和08年2月20日
むさし住建株式会社
売戸建・志村三丁目物件情報
お急ぎの方はこちらまでお電話ください
0120-15-6342
トップページへ
>
居住用物件一覧へ
> 物件情報
駅別一覧
間取一覧
写真一覧
地図一覧
地域一覧
詳細
物件番号
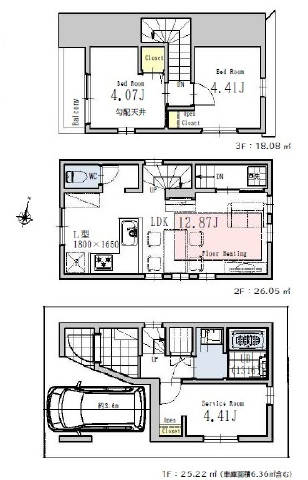
間取画像
所在地
価格
バス
徒歩
土地面積
建物面積
間取
構造
築年月
引渡時期
画像
Bk5117
東京都板橋区若木3丁目
4,280万円
−
19分
44.07m
2
69.98m
2
3LDK
木造
R08/02
相談
Bk5123
東京都板橋区若木1丁目
7,390万円
5分
−
59.93m
2
100.44m
2
3LDK
木造
R08/01
即時
Bk5116
東京都板橋区東坂下1丁目
8,598万円
−
12分
68.04m
2
123.99m
2
3LDK
木造
R08/05
相談
ページトップへ