令和08年5月15日 16時18分 更新
次回更新予定日:令和08年5月16日
むさし住建株式会社
売戸建・小竹向原駅物件情報
お急ぎの方はこちらまでお電話ください
0120-15-6342
トップページへ
>
居住用物件一覧へ
> 物件情報
駅別一覧
間取一覧
写真一覧
地図一覧
地域一覧
詳細
物件番号
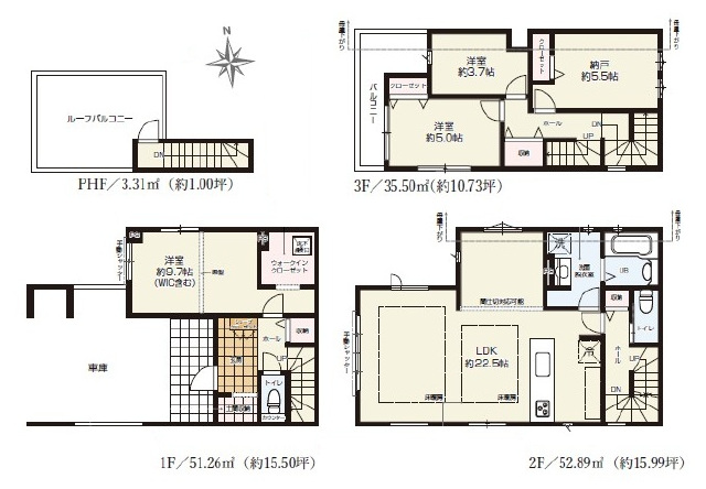
間取画像
所在地
価格
バス
徒歩
土地面積
建物面積
間取
構造
築年月
引渡時期
画像
Bk5298
東京都板橋区小茂根2丁目
7,480万円
−
14分
61.04m
2
105.67m
2
4LDK
木造
R08/06
相談
Bk5272
東京都板橋区大谷口北町
9,649万円
−
15分
64.67m
2
131.54m
2
4LDK
木造
R08/07
相談
Bk5284
東京都板橋区小茂根2丁目
11,390万円
−
14分
84.42m
2
131.24m
2
4LDK
木造
R08/01
即時
Bk5115
東京都板橋区小茂根2丁目
11,399万円
−
15分
80.91m
2
142.96m
2
4LDK
木造
R08/04
相談
ページトップへ