令和08年4月21日 16時28分 更新
次回更新予定日:令和08年4月22日
むさし住建株式会社
売戸建・大山物件情報
お急ぎの方はこちらまでお電話ください
0120-15-6342
詳細 物件番号
間取画像
所在地 価格 バス
徒歩
土地面積
建物面積
間取
構造
築年月
引渡時期
画像
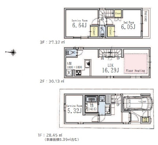
Bk5279
東京都板橋区仲町 5,380万円
8分
47.88m2
77.86m2
3LDK
木造
R08/04
新築
相談
間取あり間取あり写真あり
Bk5280
東京都板橋区仲町 6,480万円
9分
76.22m2
105.71m2
4LDK
木造
R08/04
新築
相談
間取あり間取あり写真あり
Bk5122
東京都板橋区中板橋 7,180万円
12分
46.22m2
85.9m2
3LDK
木造
R08/05
新築
相談
間取あり間取あり
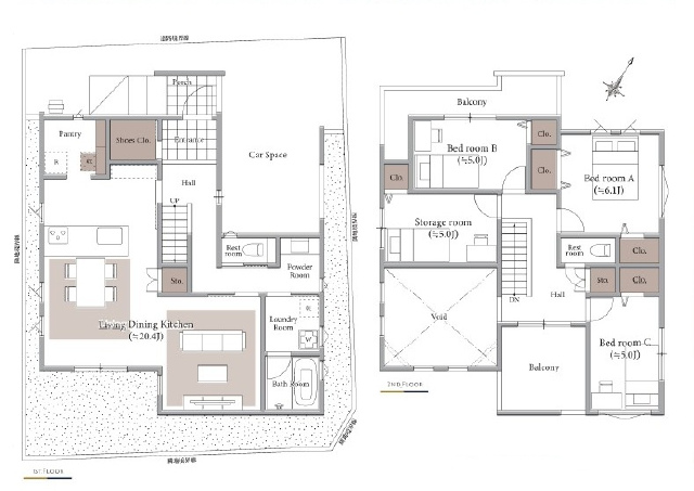
Bk5281
東京都板橋区大谷口1丁目 7,980万円
15分
125.61m2
128.78m2
4LDK
木造
R08/07
新築
相談
間取あり間取あり写真あり
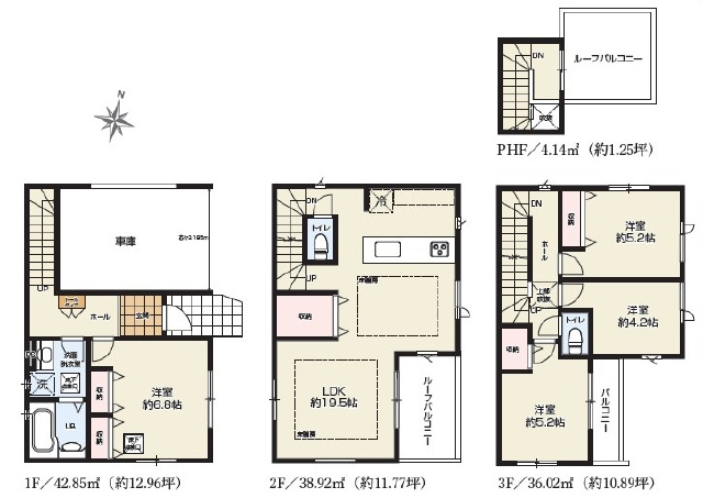
Bk5271
東京都板橋区栄町 10,999万円
7分
73.44m2
121.93m2
4LDK
木造
R08/04
新築
即時
間取あり間取あり写真あり
Bk5292
東京都板橋区大山町 14,990万円
5分
109.55m2
155.98m2
4LDK
木造
R08/05
新築
相談
間取あり写真あり